680 Frederick Street Kitchener, Ontario N2B 2B2

$660,000

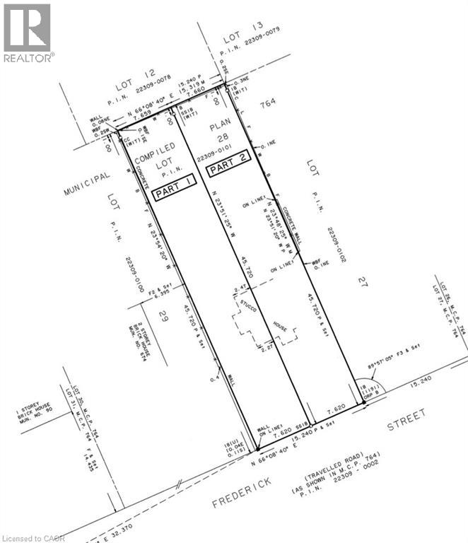
Permit ready for 2 Semi Detached Duplexes with Walk-Out In-Law Suites (separate entrances). A 50'x150' ft walk-out lot with approved Engineers Drawings. Services for both lots in place. Park fees paid. New Survey. 4-R Zoning. In a desirable area of Stanley Park close to shopping, services and the expressway. Call now to learn more. (id:43503)

Property Details

MLS® Number 40764560
Property Type Vacant Land
Neigbourhood Rosemount
Amenities Near By Public Transit, Schools

Building

Basement Type None
Utility Water Municipal Water

Land

Access Type Highway Access
Acreage No
Land Amenities Public Transit, Schools
Sewer Municipal Sewage System
Size Depth 150 Ft
Size Frontage 50 Ft
Size Total Text Under 1/2 Acre
Zoning Description R-4

Utilities

Electricity Available
Natural Gas Available

https://www.realtor.ca/real-estate/28828486/680-frederick-street-kitchener

Contact Us

Contact us for more information

Generating Captcha

Your Favourites

 

No Favourites Found

 

This site uses cookies to offer you a better browsing experience. By browsing this website, you agree to our use of cookies.