298 Second Road E Stoney Creek, Ontario L8J 3J4

4 Bedroom 3 Bathroom 2,708 ft2
2 Level Central Air Conditioning Forced Air Acreage

$2,219,900

Excellent chance to acquire a 22.2-acre farm featuring a spacious 2 story brick house, perfectly situated on the corner of Mud Street & Second Rd East. The property boasts an impressive 1,938.29 feet of frontage, in a prime location on Stoney Creek Mountain, near upcoming developments. Several upgrades have been made in the last five years. Includes a double car garage and is conveniently close to all necessities: shopping, schools, and easy access to Red Hill Expressway, LINC, and QEW. (id:43503)

Property Details

MLS® Number 40775052
Property Type Single Family
Features Corner Site, Country Residential
Parking Space Total 12

Building

Bathroom Total 3
Bedrooms Above Ground 4
Bedrooms Total 4
Appliances Dryer, Refrigerator, Stove, Washer
Architectural Style 2 Level
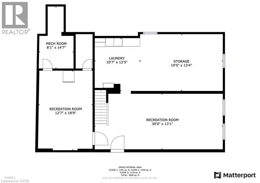
Basement Development Partially Finished
Basement Type Full (partially Finished)
Construction Style Attachment Detached
Cooling Type Central Air Conditioning
Exterior Finish Brick
Foundation Type Block
Half Bath Total 1
Heating Fuel Natural Gas
Heating Type Forced Air
Stories Total 2
Size Interior 2,708 Ft2
Type House
Utility Water Cistern

Parking

Attached Garage

Land

Acreage Yes
Sewer Septic System
Size Depth 484 Ft
Size Frontage 1938 Ft
Size Total Text 10 - 24.99 Acres
Zoning Description A1

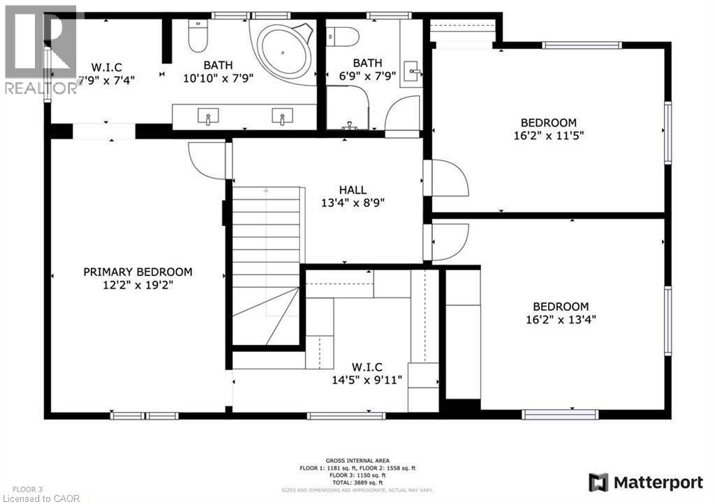
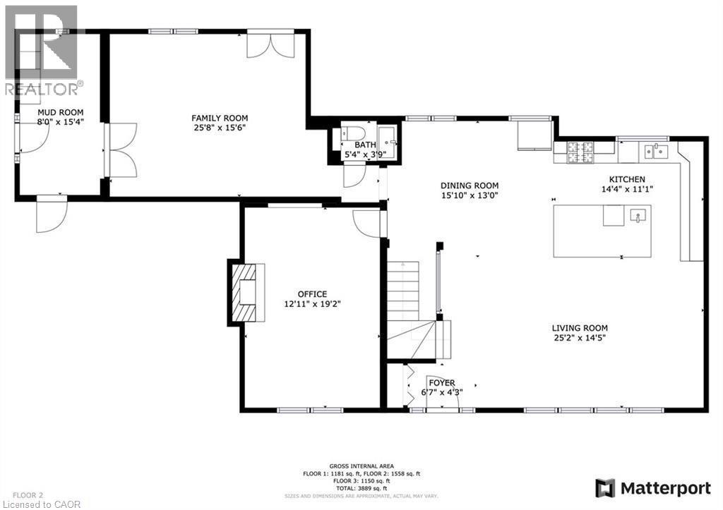
Rooms

Level Type Dimensions
Second Level 3pc Bathroom Measurements not available
Second Level 4pc Bathroom Measurements not available
Second Level Bedroom 16'2'' x 12'0''
Second Level Bedroom 16'2'' x 13'4''
Second Level Bedroom 19'2'' x 13'0''
Main Level 2pc Bathroom Measurements not available
Main Level Bedroom 19'2'' x 13'0''
Main Level Dining Room 15'10'' x 13'0''
Main Level Living Room 25'2'' x 14'5''
Main Level Kitchen 14'1'' x 11'1''
Main Level Family Room 15'4'' x 8'0''
Main Level Foyer Measurements not available

https://www.realtor.ca/real-estate/28933709/298-second-road-e-stoney-creek

Contact Us

Contact us for more information

Generating Captcha

Your Favourites

 

No Favourites Found

 

This site uses cookies to offer you a better browsing experience. By browsing this website, you agree to our use of cookies.